• Work
  • About
  • Contact
alkisti roussou
  • Work
  • About
  • Contact

boutique hotel in Chania

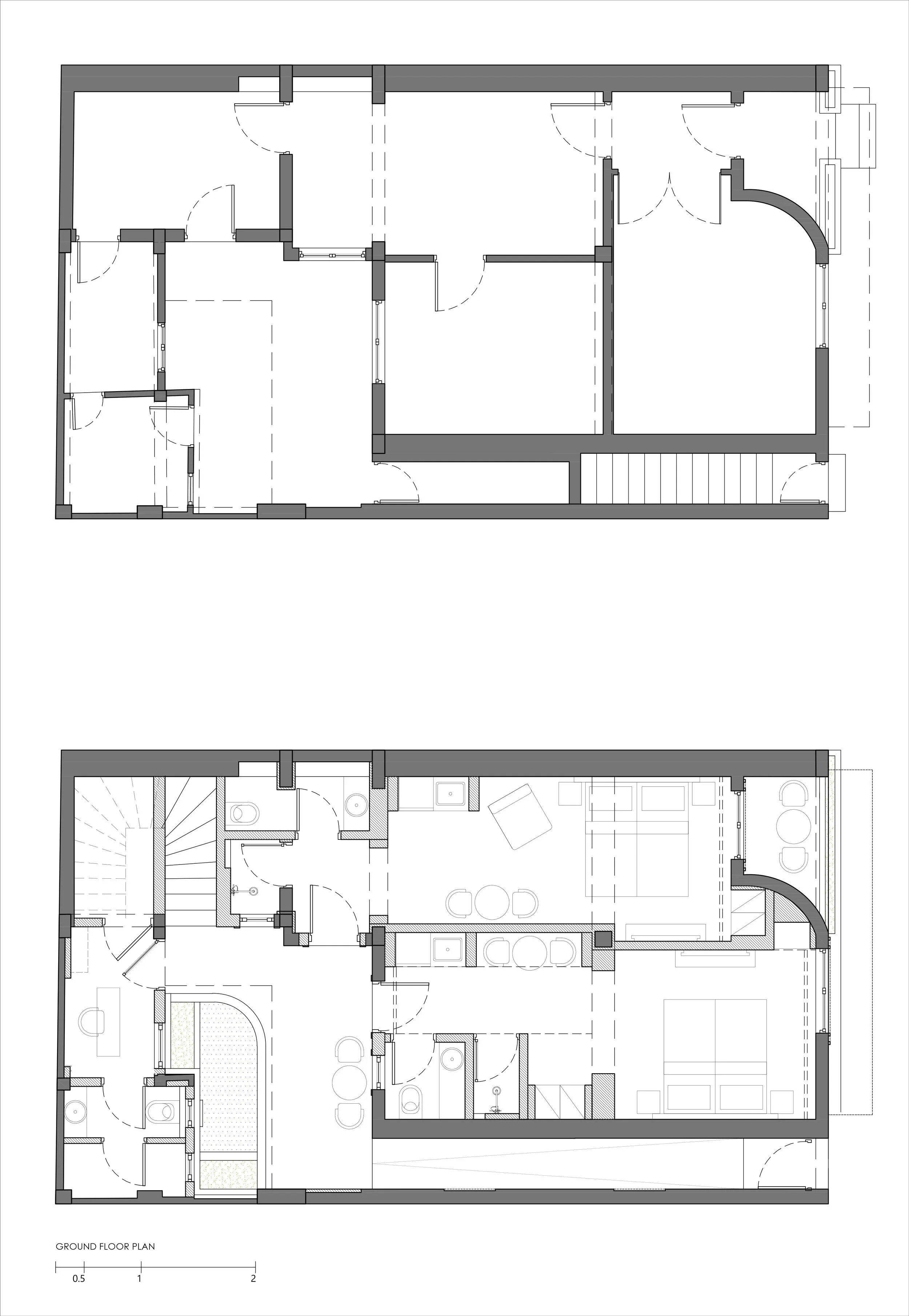
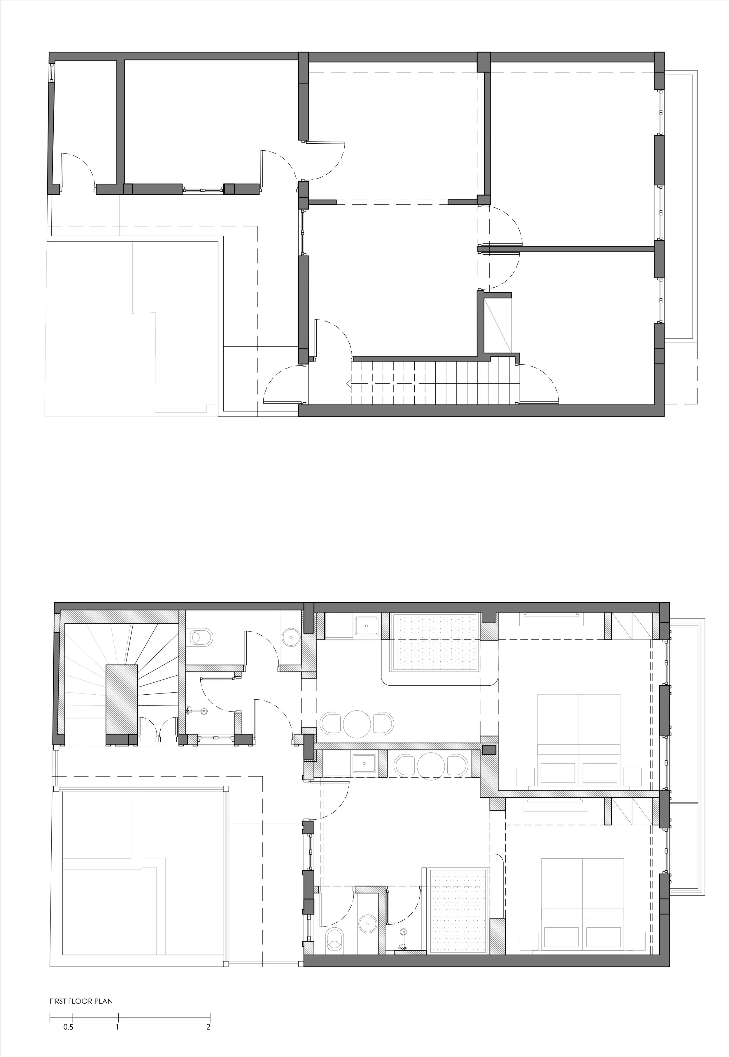
Η παρούσα μελέτη αφορά την αποκατάσταση τριώροφης κατοικίας και τη μετατροπή της σε boutique hotel, εντός του ιστορικού ιστού της παλιάς πόλης των Χανίων.

‍Το σύνολο της πρότασης διέπεται από σεβασμό προς το υφιστάμενο κέλυφος και τον ιστορικό χαρακτήρα της παλιάς πόλης των Χανίων, επιδιώκοντας τη διακριτική ένταξη των νέων χρήσεων σε ένα κτίριο με έντονη ταυτότητα και μνήμη.

‍Στο ισόγειο αποκαθίσταται το στηθαίο του ημιυπαίθριου χώρου, ενώ η κεντρική είσοδος επανασχεδιάζεται στη θέση της υφιστάμενης εισόδου του Α΄ ορόφου, ώστε να εξυπηρετεί λειτουργικά το σύνολο του κτιρίου. Η νέα είσοδος οδηγεί στην εσωτερική αυλή, όπου διαμορφώνεται ένας μικρής κλίμακας χώρος υποδοχής, ενώ το νέο κοινόχρηστο κλιμακοστάσιο τοποθετείται στη δυτική γωνία του οικοπέδου, εξασφαλίζοντας σαφή κυκλοφοριακή οργάνωση.

Οι ενδιάμεσοι εσωτερικοί τοίχοι καθαιρούνται χωρίς να επηρεάζεται ο φέρων οργανισμός του κτιρίου, ενώ διατηρούνται αναλλοίωτα τα ανοίγματα της πρόσοψης, με στόχο τη διαφύλαξη της ιστορικής φυσιογνωμίας του κελύφους. Σε κάθε όροφο διαμορφώνονται δύο δωμάτια διαμονής, τα οποία περιλαμβάνουν ενιαίο χώρο καθιστικού και κουζίνας, καθώς και ιδιωτικό λουτρό.

‍Στο επίπεδο του δώματος, το υφιστάμενο δωμάτιο μετατρέπεται σε κοινόχρηστη κουζίνα με λουτρό, ενώ στον υπαίθριο χώρο τοποθετείται ξύλινη πέργκολα με καθιστικό και μικρή κολυμβητική δεξαμενή, προσφέροντας έναν χώρο χαλάρωσης με ιδιαίτερο χαρακτήρα.

‍Αρχιτεκτονικός σχεδιασμός / Σχεδιασμός εσωτερικών χώρων: Άλκηστη Ρούσσου, Θοδωρής Νικολουδάκης, Μαρία Σκορδούλη αρχιτέκτονες μηχανικοί  / Έκδοση Ο.Α. : Χατζηδάκη Ελένη, πολ. Μηχανικός

‍This study concerns the restoration of a three-storey residence and its conversion into a boutique hotel, located within the historic fabric of Chania’s Old Town.

The overall proposal is guided by a deep respect for the existing shell and the historic character of Chania’s Old Town, aiming for the discreet integration of the new hospitality use within a building of strong identity and memory

‍At ground-floor level, the parapet of the semi-open space is restored, while the main entrance is redesigned at the position of the existing first-floor entrance in order to serve the building as a whole more efficiently. The new entrance leads to the internal courtyard, where a small-scale reception area is introduced, while the new shared staircase is positioned at the western corner of the plot, ensuring clear circulation throughout the property.

The internal partition walls are removed without affecting the building’s structural system, while the façade openings remain unaltered in order to preserve the shell’s historic architectural identity. Each floor accommodates two guest rooms, each comprising an open-plan living and kitchen area together with a private bathroom.

‍At roof level, the existing room is transformed into a shared kitchen with an adjoining bathroom, while the outdoor roof terrace is enhanced with a timber pergola, a lounge seating area, and a small plunge pool, creating a distinctive space for relaxation.

‍Architectural design / Interior design: Alkisti Roussou, Thodoris Nikoloudakis, Maria Skordouli, architects engineers  / Licencing: Chatzidaki Eleni, structural engineer

‍ ‍

exterior 01
exterior 02
exterior 03
exterior 04
exterior 05
exterior 06
exterior 07
exterior 08
interior 01
interior 03
interior 02
interior 07
interior 04
interior 06
interior 05
ground floor plan
first floor plan
second floor plan

Powered by Squarespace.