• Work
  • About
  • Contact
alkisti roussou
  • Work
  • About
  • Contact

kydoni signature apartment

Kydoni signature apartment

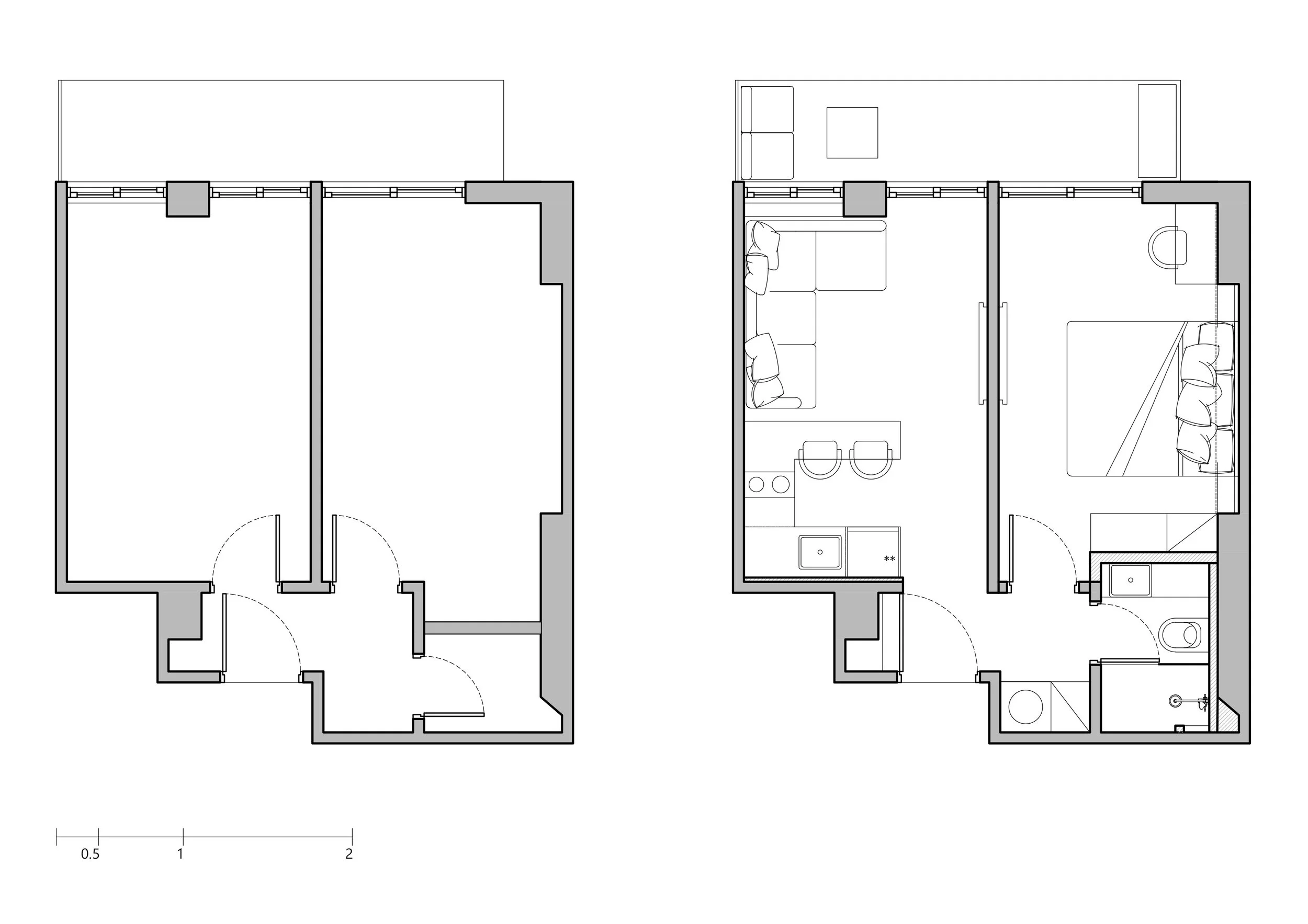
Η παρούσα μελέτη αναδιαμορφώνει ένα παλαιό δικηγορικό γραφείο σε διαμέρισμα βραχυχρόνιας μίσθωσης. Το διαμέρισμα, 32 τ.μ., βρίσκεται στον πυρήνα της πόλης και αποπνέει έναν σύγχρονο αλλά ταυτόχρονα φιλόξενο χαρακτήρα. Στόχος υπήρξε η ελάχιστη επέμβαση στη διαρρύθμιση, με τις καθαιρέσεις να περιορίζονται αποκλειστικά στην επέκταση του λουτρού. Η διατήρηση του κεντρικού διαχωριστικού τοίχου και των υφιστάμενων ανοιγμάτων στην όψη οδήγησε στη διαμόρφωση ενός ενιαίου χώρου κουζίνας-καθιστικού, πλαισιωμένου από ένα αυτόνομο υπνοδωμάτιο.

Ο περιορισμένος χώρος αποτέλεσε αφετηρία για έναν συνεκτικό σχεδιασμό που αξιοποιεί στο έπακρο τις δυνατότητές του, συνδυάζοντας λειτουργικότητα και αισθητική καθαρότητα. Η κουζίνα αναπτύσσεται σε σχήμα Π, με ανοιχτό τμήμα που λειτουργεί ταυτόχρονα ως πάσο φαγητού και ως οπτικό φίλτρο προς το καθιστικό. Οι καθαρές γραμμές συνεχίζονται στο υπνοδωμάτιο και το λουτρό, ενώ το ξύλο κυριαρχεί σε όλες τις κατασκευές, προσδίδοντας συνέχεια και ζεστασιά στην ατμόσφαιρα.

Αρχιτεκτονική μελέτη / Interior design: Άλκηστη Ρούσσου, Θοδωρής Νικολουδάκης, Αρχιτέκτονες μηχανικοί / Φωτογραφίες:backlight photography / Ξυλουργικές εργασίες: Αντώνης Σηφαντωνάκης / Πλακίδια, είδη υγιεινής: ΆΚΡΟΝ

This architectural project reimagines a former law office as a short-term rental apartment. Situated in the heart of the city, the 32 sq.m. space conveys a contemporary yet inviting atmosphere. The design approach sought minimal intervention in the floor plan, with structural modifications limited to the expansion of the bathroom. By retaining the central partition wall and the existing façade openings, the layout organizes a unified kitchen-living area alongside a distinct bedroom.

The compact footprint served as the impetus for a cohesive design strategy that maximizes spatial potential, balancing functionality with refined aesthetics. The kitchen unfolds in a U-shaped configuration, with an open section that doubles as both a dining counter and a subtle divider for the living area. Clean, understated lines extend into the bedroom and bathroom, while wood emerges as the dominant material, lending warmth and continuity throughout the interior.

Architectural design / Interior design: Alkisti Roussou, Theodore Nikoloudakis, Architects / Photography: backlight photography / Carpentry: Antonis Sifantonakis /Tiles & sanitary ware:AKRON

kitchen 01
living
living 02
living 03
living 04
living 05
kitchen 02
kitchen 03
entrance
bedroom
bedroom 02
bedroom 03
bathroom 01
bathroom 02
plan

Powered by Squarespace.