• Work
  • About
  • Contact
alkisti roussou
  • Work
  • About
  • Contact

residence renovation in Patelari

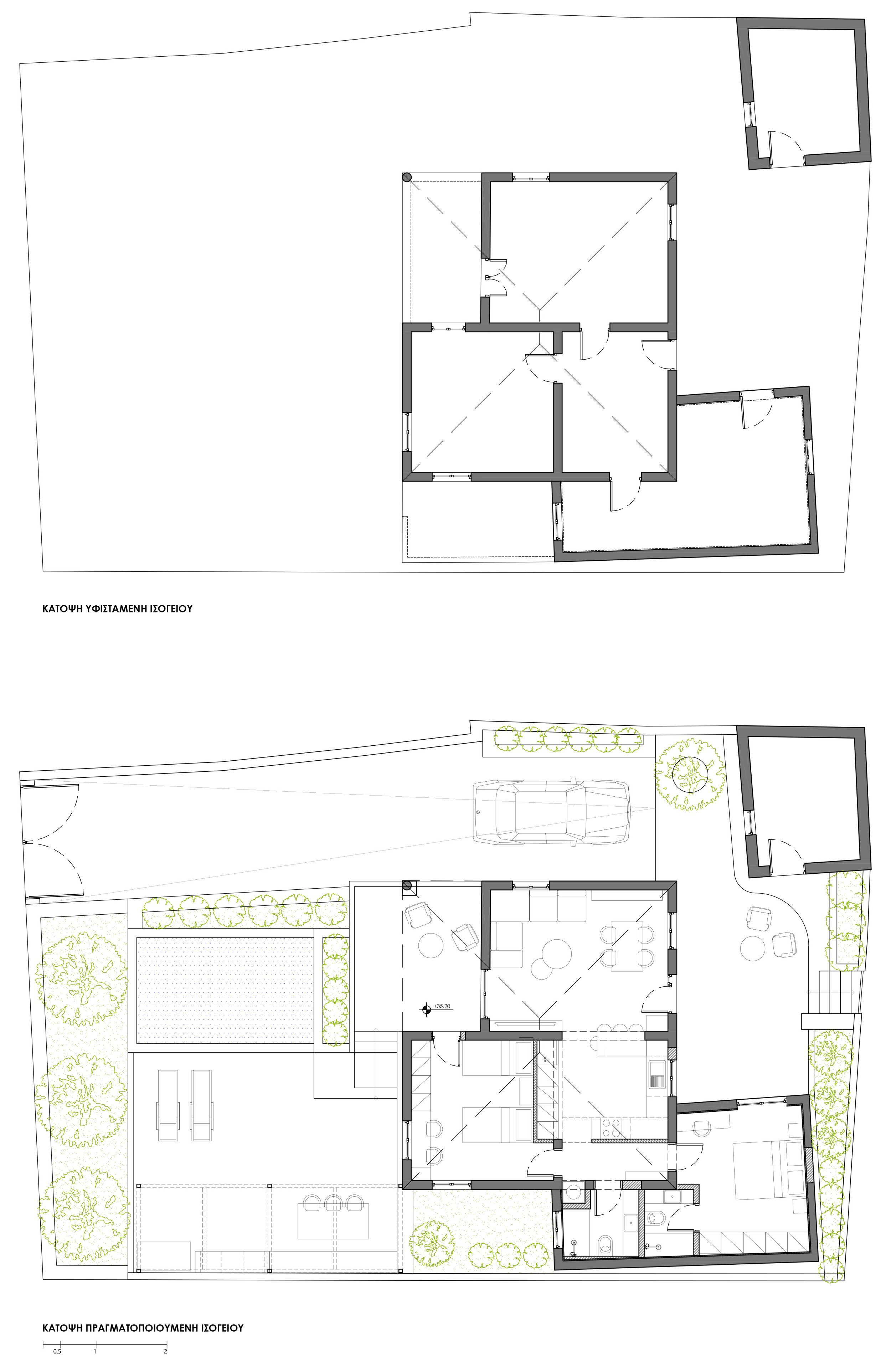
Η παρούσα αρχιτεκτονική μελέτη αφορά στην ανακαίνιση ισόγειας κατοικίας, καθώς και στη διαμόρφωση του περιβάλλοντος χώρου, με την ένταξη μικρής κολυμβητικής δεξαμενής.

Κεντρικός άξονας του σχεδιασμού αποτελεί η ανάδειξη της αρχικής αρχιτεκτονικής φυσιογνωμίας του κτιρίου. Οι επεμβάσεις περιορίζονται σε στοχευμένες προσαρμογές της εσωτερικής διαρρύθμισης του διώροφου κελύφους, με στόχο την κάλυψη σύγχρονων λειτουργικών απαιτήσεων, διατηρώντας παράλληλα τον αυθεντικό χαρακτήρα του. Παράλληλα, περιορισμένες τροποποιήσεις στα εξωτερικά ανοίγματα εξασφαλίζουν τον επαρκή φυσικό φωτισμό και αερισμό των εσωτερικών χώρων.

Στον περιβάλλοντα χώρο προβλέπεται η δημιουργία σκιασμένου χώρου τραπεζαρίας, καθώς και η διαμόρφωση της κολυμβητικής δεξαμενής με συνοδευτικό χώρο καθιστικού, ενισχύοντας τη λειτουργική και χωρική συνοχή της κατοικίας με το υπαίθριο περιβάλλον.

Αρχιτεκτονικός σχεδιασμός / Σχεδιασμός εσωτερικών χώρων: Άλκηστη Ρούσσου, Θοδωρής Νικολουδάκης, Μαρία Σκορδούλη, αρχιτέκτονες μηχανικοί

This architectural study concerns the renivation of a ground-floor residence, along with the design of its surrounding outdoor space, incorporating a small swimming pool.

The primary design objective is to highlight and preserve the building’s original architectural identity. Interventions are limited to targeted adjustments to the internal layout of the two-storey structure, aiming to meet contemporary functional requirements while maintaining its authentic character. At the same time, minor modifications to the external openings are introduced to ensure adequate natural lighting and ventilation of the interior spaces.

The outdoor area includes a shaded dining space, as well as the design of the swimming pool accompanied by a seating area, reinforcing the spatial and functional relationship between the residence and its outdoor environment.

Architectural Design / Interior Design: Alkistis Roussou, Theodore Nikoloudakis, Maria Skordouli, Architects Engineers

exterior 02
exterior 03
exterior 04
exterior 01
exterior 06
exterior 05
interior 01
interior 03
interior 02
plans

Powered by Squarespace.