• Work
  • About
  • Contact
alkisti roussou
  • Work
  • About
  • Contact

residence restoration in Galatas

Villa Seyian

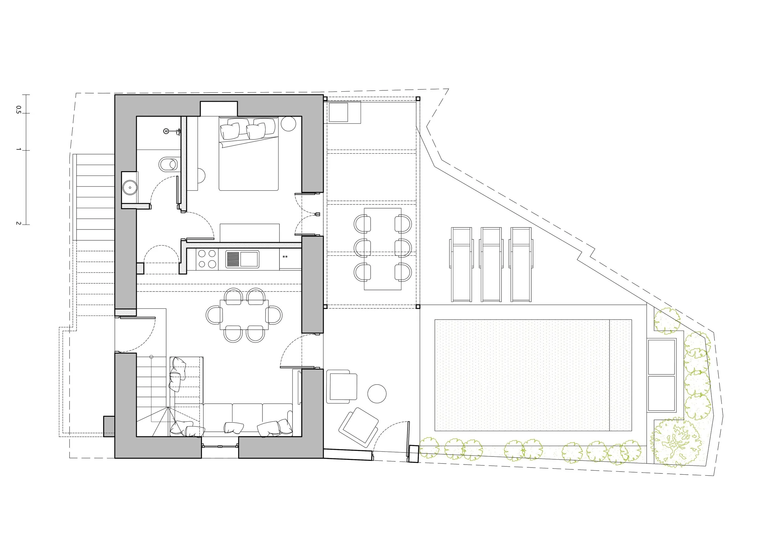
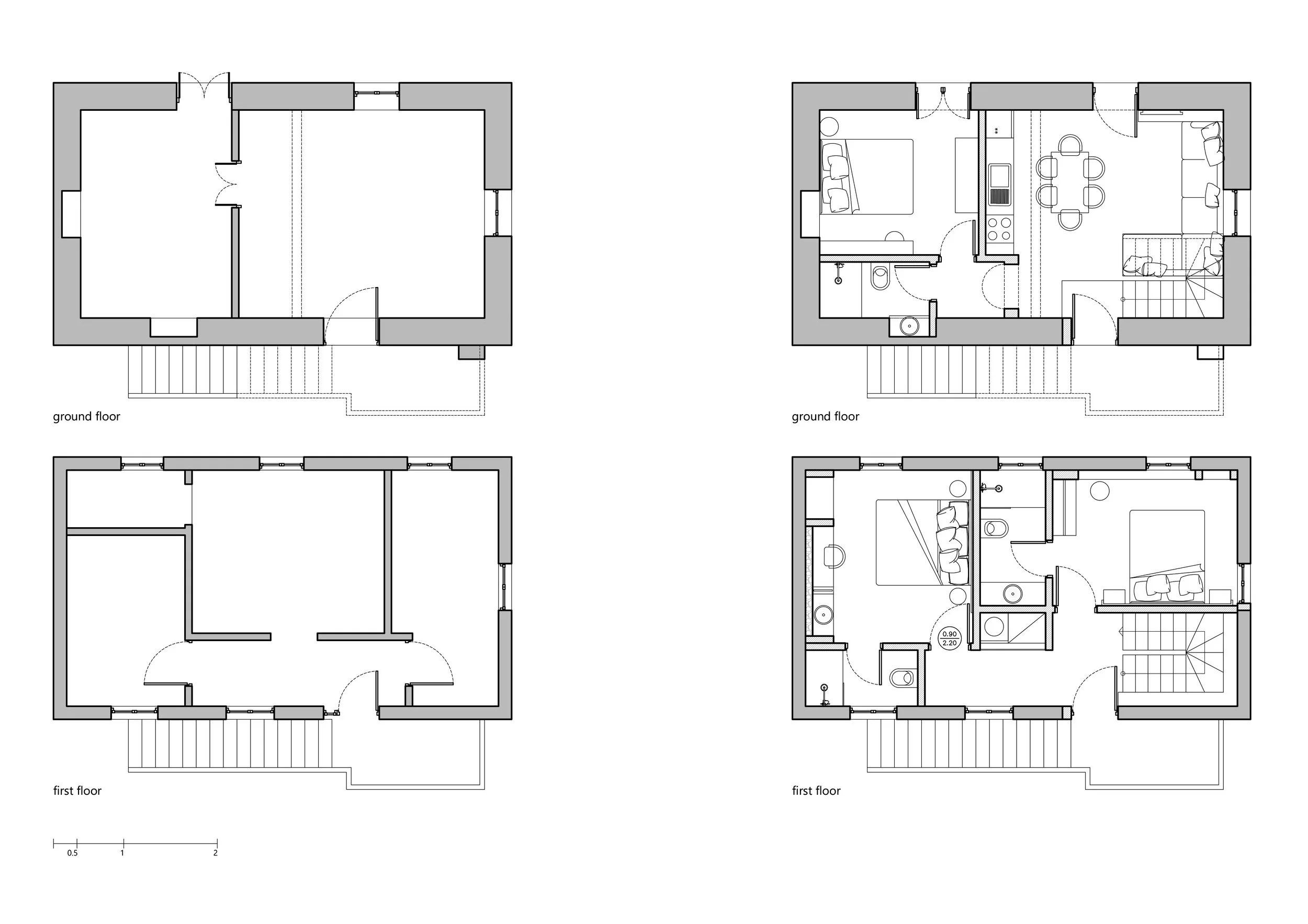
Η παρούσα αρχιτεκτονική μελέτη αποσκοπεί στην αποκατάσταση της διώροφης πετρόκτιστης κατοικίας και στην διαμόρφωση του περιβάλλοντα χώρου με την ένταξη μικρής κολυμβητικής δεξαμενής με σκοπό την βραχυπρόθεσμη ενοικίαση.

Βασικό κριτήριο της σχεδίασης υπήρξε η ανάδειξη της αρχικής αρχιτεκτονικής φυσιογνωμίας. Όσον αφορά στις παρεμβάσεις αρχιτεκτονικού χαρακτήρα, γίνεται περιορισμένη μετατροπή της εσωτερικής διαρρύθμισης των διώροφων κτισμάτων, ώστε να ικανοποιούνται οι σύγχρονες ανάγκες και λειτουργίες. Παράλληλα, ελάχιστα εξωτερικά ανοίγματα τροποποιούνται για την εξασφάλιση επαρκούς αερισμού και φωτισμού των χώρων. Στον περιβάλλοντα χώρο σχεδιάζεται ένας σκιασμένος χώρος τραπεζαρίας καθώς και ο χώρος της κολυμβητικής δεξαμενής με το καθιστικό.

Το σύνολο των εσωτερικών και εξωτερικών χώρων σχεδιάζονται σε απλές γραμμές εντάσσοντας σε αυτές στοιχεία απο την παραδοσιακή κρητική αρχιτεκτονική.

Αρχιτεκτονικός σχεδιασμός / Σχεδιασμός εσωτερικών χώρων: Άλκηστη Ρούσσου, Θοδωρής Νικολουδάκης, Μαρία Σκορδούλη αρχιτέκτονες μηχανικοί / Ξυλουργικές εργασίες: WrightWood / Κατασκευή πισίνας: Soleo piscines / Μεταλλικές κατασκευες: Metal Design / Φωτογραφίες: South space for photography

This architectural study aims at the restoration of the two-floor stone-built house and its surrounding area with the addition of a swimming pool.

As far as the architectural interventions are concerned, limited interventions of the internal layout were made, in order to satisfy contemporary needs and functions, and a few windows were added maintaining the proportions of the existing to ensure adequate ventilation and lighting. The courtyard is designed with a shaded dining area, a small swimming pool and a sitting area around it.

A minimal design style is chosen for all the spaces with the addition of traditional Cretan architectural elements.

Architectural & Interior design: Alkisti Roussou, Theodore Nikoloudakis, Maria Skordouli, architects /Wooden constructions: WrightWood / Swimming pool: Soleo piscines / Metal constructions: Metal Design / Photography: South space for photography

villa seyian
villa seyian
villa seyian
villa seyian
villa seyian
villa seyian
villa seyian
villa seyian
villa seyian
villa seyian
villa seyian
villa seyian
villa seyian
villa seyian
villa seyian
villa seyian
villa seyian
villa seyian
villa seyian
villa seyian
plans
masterplan
pool area
pool area 03
pool area 02
pool area 05
living area
kitchen area
staircase
kitchen
bedroom 01
bedroom 01b
bedroom 02
bedroom 02b

Powered by Squarespace.